H. Martinus Kerk - Kerk
Rossum, Mgr. Bekkersplein 4
| Vraagprijs: € 178.000 k.k. Huurprijs: € 1.200 /maand |
Opgeheven kerk gelegen aan een grote vijver in de kern van het dorp, op loopafstand van winkels en met voldoende parkeergelegenheid in de nabijheid. De kerkruimte is goed bruikbaar voor het realiseren van bedrijfsruimten / gezondheidscentrum / aangepaste woningen en/of appartementen, of een combinatie er van.
Er is genoeg hoogte in het gebouw om er een tussenvloer in te realiseren om zo meer m² gebruiksoppervlakte te realiseren. Boven het verlaagde plafond bevindt zich nog een ruimte van ca. 2 meter hoog.
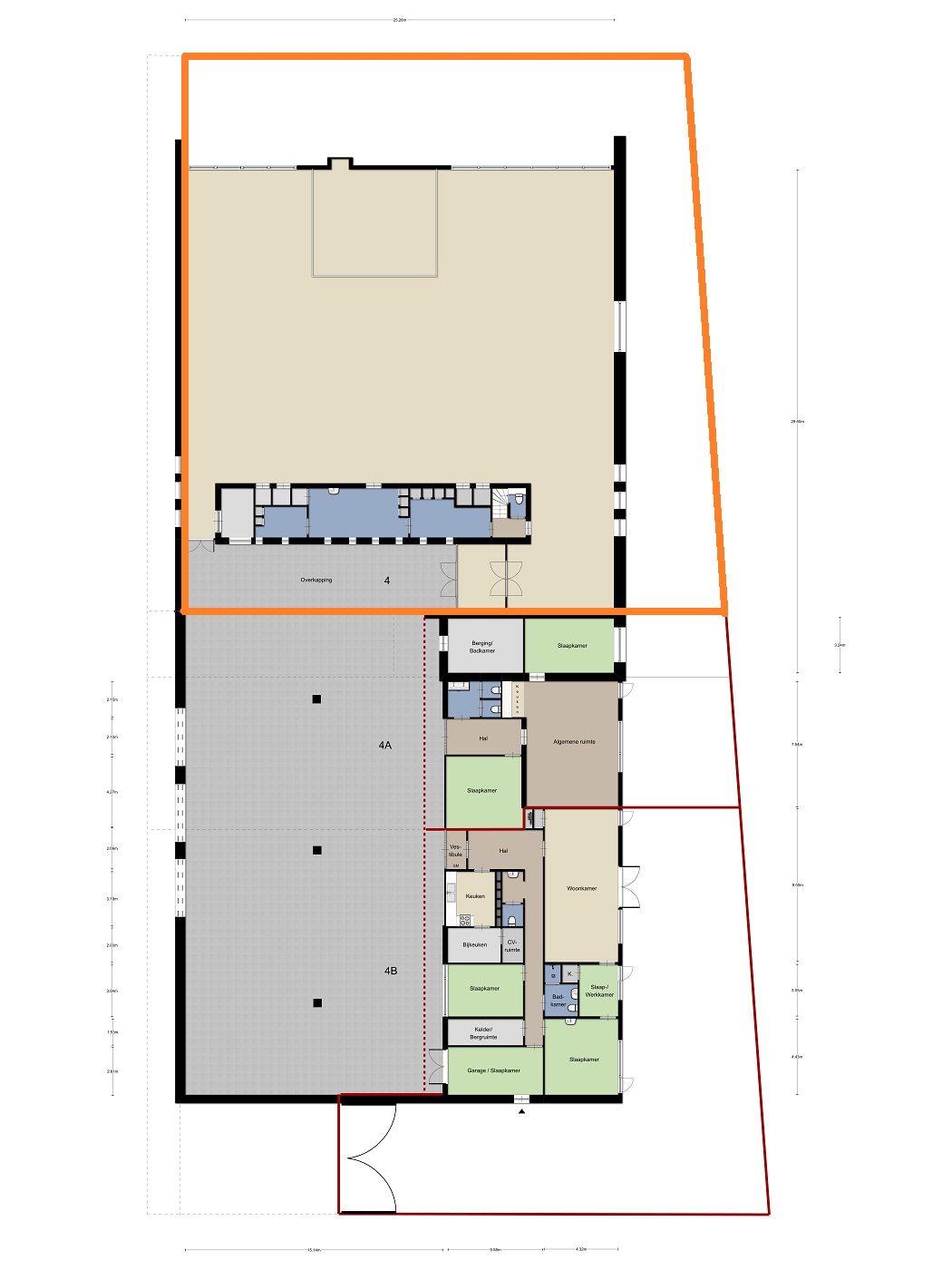
Indeling:
- Entree, portaal.
- Kerkruimte, ca. 583 m² vvo, met sacristie bestaande uit 2 biechtruimte.
- Sacristie met diverse inbouwkasten, tussenruimte met diverse kasten.
- Kitchenette, in gebruik als berging.
- Portaal met trapogpang naar het balkon. Onder trap een toiletruimte
- Bergruimte met opstelling cv-ketel.
Er is de mogelijkheid voor het bijkopen van de naastgelegen kleine woning/kantoorruimte en de daarnaast gelegen grotere woning/bungalow.
De kerk heeft een maatschappelijke bestemming, echter de gemeente staat welwillend tegenover bredere gebruiksmogelijkheden. Dit natuurlijk wel in overleg en goedkeuring van de gemeente.
Het betreft hier een bijzonder stuk onroerend goed met een bijzondere historie welke door zijn layout geschikt is voor brede gebruiksmogelijkheden.
Kenmerken
| Onderhoud binnen: | zeer goed |
| Onderhoud buiten: | zeer goed |
| Ligging | Stadscentrum/dorpskern |
| Afstand tot doorgaande weg | op ca. 1,2km |
| Afstand tot snelwegafrit | op ca. 5,8km |
| Afstand tot NS station | op ca. 5,3km |
| Afstand to winkelvoorziening | op ca. 400m |
Ga terug naar overzicht
Interesse? Neem contact op
Neem contact op
Bent u geïnteresseerd in deze of één van onze andere objecten? Laat het ons weten en we bespreken met u de mogelijkheden.
Tel: 040 243 37 66
E-mail: info@kerken.nu
